For sale Middle Floor Apartment Costa Del Sol Torreblanca € 499.000,-
Welcome to this apartment in Torreblanca - situated just 200 meters from the beach!
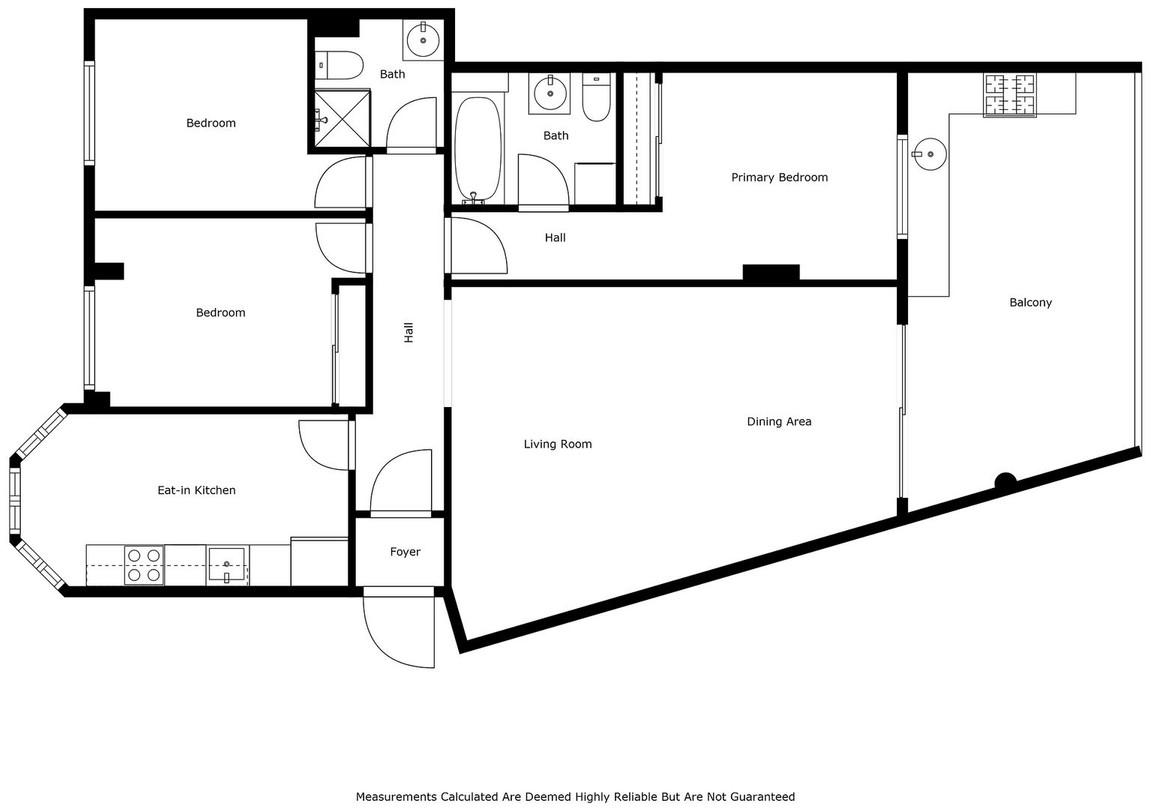
Located just steps away from the beautiful Carvajal Beach in Fuengirola, this bright and spacious 3 bedroom offers the perfect blend of comfort, convenience, and coastal living. Situated on the 1st floor in this well-maintained community, this property is ideal as a permanent residence, holiday home, or investment for vacation rentals.
Enjoy a bright and inviting living space with elegant marble flooring, and direct access to a large covered terrace with south west orientation, offering views of the pool and partial sea views.
There are 3 spacious bedrooms, master bedroom with its en-suite and the other 2 bedrooms sharing a full bathroom with shower.
Fully equipped kitchen with modern appliances, and large windows giving lots of natural light.
Well kept garden and swimming pool area. Private parking space in the garage.
Set in the sought-after Torreblanca area, this apartment is just 200 meters from the beach, with easy access to shops, restaurants, public transport, and the lively atmosphere of Fuengirola. A truly privileged location on the Costa del Sol, perfect for both living and investing.
Don't miss out on this fantastic opportunity. Contact us today to schedule a viewing!
more info