For sale Residential Plot Costa Del Sol Hacienda Las Chapas € 3.600.000,-
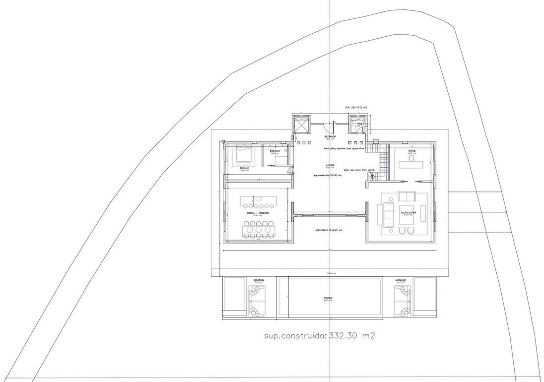
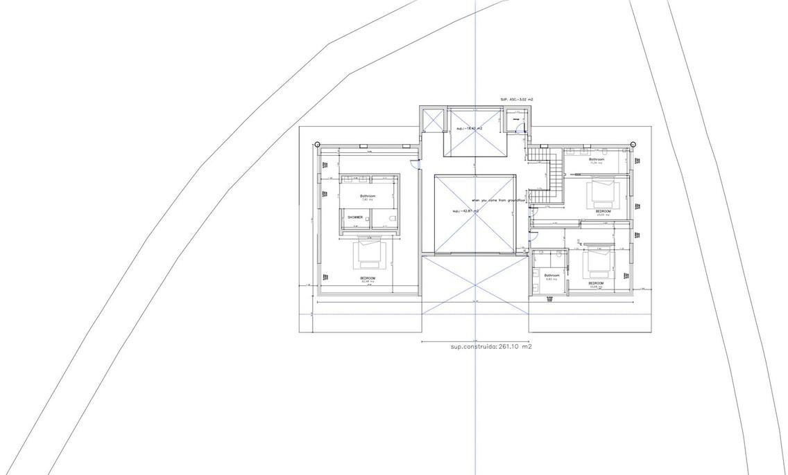
In the exclusive Las Chapas area, a unique opportunity arises: a plot of land exceeding 4,500 m² with a completed project.
The project envisions a home of approximately 800 m² distributed over three floors, including an elegant basement with a spacious garage. Each space has been designed with superior quality materials and a contemporary architectural style that seamlessly blends light, design, and nature.
The building permit application has already been submitted and is expected to be approved within a couple of months.
There is the option to purchase the villa off-plan, allowing for customization of finishes (price upon request), or to purchase only the land with the completed project already submitted—an ideal option for those seeking to invest or develop their own concept within an approved architectural framework.
An exclusive property in one of Marbella's most sought-after locations.
more info